中古一戸建て
この物件は 266 人の方が見ています
上田市緑が丘2丁目
50坪以上
4LDK以上
上下水道完備
病院まで徒歩11分!スーパー、ホームセンターまで徒歩14分です♪
閑静な住宅地の中古住宅です
駐車場:現況1台分です。庭を駐車場スペースリフォームのご相談承ります!
物件概要
| 所在地 | 価格 | ||
|---|---|---|---|
| 上田市緑が丘2丁目 | 520 万円 | ||
| 交通 |
しなの鉄道 上田駅 まで 徒歩30分 赤・青・オレンジバス「緑が丘西」 5分 JR上田駅から車で6分 |
土地権利 | 所有権 |
| 小学校区 | 上田市立西小学校 (850m) | 中学校区 | 上田市立第三中学校 (950m) |
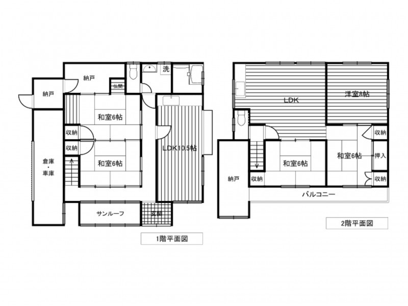
| 間取り | 6LDK | 築年数 | 1963年(昭和38)11 月 |
| 土地面積 | 公簿 174.09㎡(52.66坪) | 建物面積 | 126.21㎡ (38.17坪) |
| 地目 | 宅地 | 私道負担 | |
| 都市計画 | 非線引区域 | 用途地域 | 1種中高 |
| 建ぺい率 | 60% | 容積率 | 200% |
| 上水道 | 公共 | 下水道 | 公共 |
| ガス | 現況 | 空 | |
| 構造 | 木造 地上2階建 | 駐車場 | 有 1台 |
| 取引態様 | 仲介 | 明渡 | 相談 |
| 設備・条件 | シャンプードレッサー、追い焚き | ||
| 備考 |
・駐車場:現況1台分です。庭を駐車場スペースリフォームのご相談承ります! ・道路後退有り ・現状有姿売買 |
||
弊社では、売主様に配慮し、物件所在地を掲載していない物件がございます。
詳細については、お気軽にお問合せください。
(物件番号: 3001747)
【更新年月日】2026年04月03日
【次回更新日】2026年05月03日



