この物件は 1113 人の方が見ています
上田市蒼久保
冬あたたかく夏すずしいZ空調搭載のオール電化新築住宅です♪
嬉しいポイント!
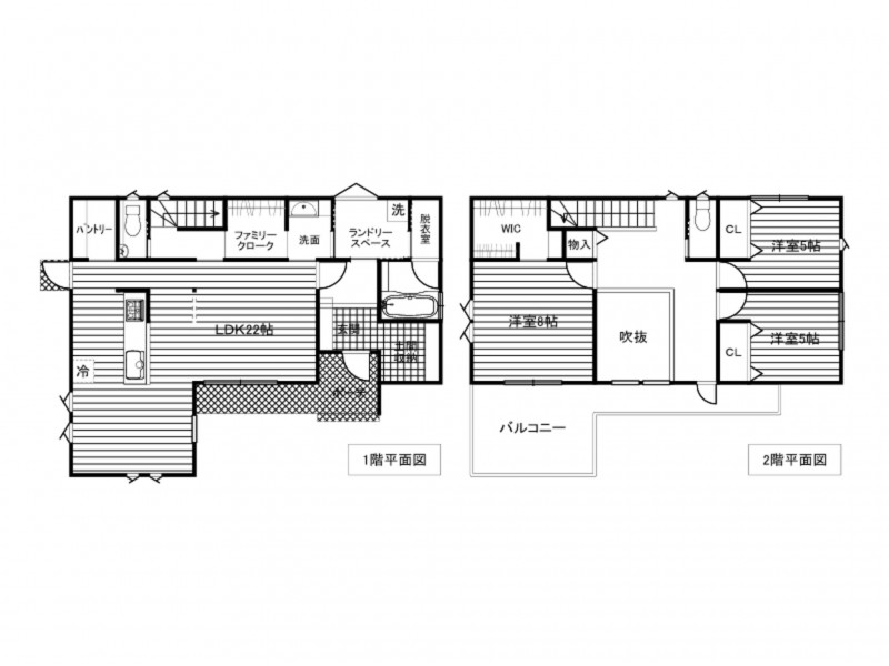
・リビングに吹抜けで開放感
・ひろびろパントリーがありキッチン周りをスッキリ収納
・浴室脱衣所とドア一枚隔ててランドリースペースがあり快適
・ランドリースペースからファミリークロークへの動線もスムーズ
・2階のホールから1階リビングの吹抜けで明るく開放感
・ひろびろ玄関土間収納で玄関周りスッキリ収納
・外構工事も済ませてお引渡しします
・駐車場は車種にもよりますが3台駐車可能
2026年6月中旬完成予定、7月モデルハウスOPEN
物件概要
| 所在地 | 価格 | ||
|---|---|---|---|
| 上田市蒼久保 | 3,450 万円 | ||
| 交通 |
しなの鉄道 信濃国分寺駅 まで 徒歩22〜23分 しなの鉄道 上田駅 まで 徒歩58〜59分 オレンジバス「上青木」 1〜2分 JR上田駅から車で14分 |
土地権利 | 所有権 |
| 接道状況 | 東側6.0m | ||
| 小学校区 | 上田市立神川小学校 (1750〜1800m) | 中学校区 | 上田市立第一中学校 (1600〜1650m) |
| 間取り | 3LDK | 築年数 | 2026年(令和8)7 月 完成予定 |
| 土地面積 | 201.56㎡(60.97坪) | 建物面積 | 121.31㎡ (36.69坪) |
| 地目 | 宅地 | 私道負担 | |
| 都市計画 | 非線引区域 | 用途地域 | 定無 |
| 建ぺい率 | 60% | 容積率 | 200% |
| 上水道 | 公共 | 下水道 | 公共 |
| ガス | 都市ガス | 現況 | 建築中 |
| 構造 | 木造 地上2階建 | 駐車場 | 有 2台 |
| 取引態様 | 仲介 | 明渡 | 予定 2026年8月 |
| 建築確認番号 | 第25NJU-10-00592号 | ||
| 設備・条件 | システムキッチン、カウンターキッチン、食器洗浄乾燥機、IHクッキングヒーター、オール電化、洗浄便座、追い焚き、複層ガラス、ウォークインクローゼット、モニタ付インターホン、駐車場2台分、エコキュート、トイレ2箇所 | ||
| 備考 | |||
弊社では、売主様に配慮し、物件所在地を掲載していない物件がございます。
詳細については、お気軽にお問合せください。
(物件番号: 3001729)
【更新年月日】2026年05月12日
【次回更新日】2026年06月12日
【取引条件の有効期限】2026年05月26日



